Segment 171 m2 z ogrodem, garaż ul. Pomarańczowa

lokalizacja: Marki, Pomarańczowa

899 000,00 PLN

5 245,04 PLN

Opis nieruchomości

Biuro sprzedaży dewelopera — bez prowizji i bez podatku PCC

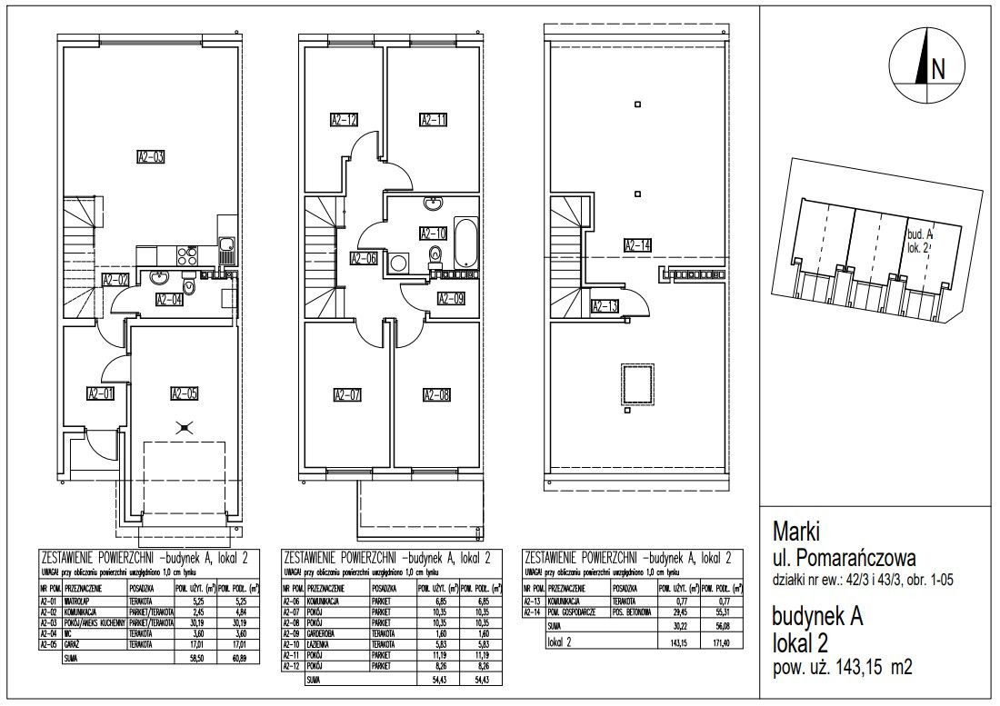
Do sprzedania bezczynszowy 3‑poziomowy segment z ogrodem i garażem o powierzchni 171,4 m2 (powierzchnia użytkowa 143.15m2) zlokalizowany w Markach przy ul. Pomarańczowej.

Termin oddania I kwartał 2026

| 6 sypialni, 3 łazienki | I strefa ZTM, blisko S8

Układ i metraże
Parter:
Garaż 17,01 m² z bezpośrednim wejściem do przedpokoju

Salon z aneksem 30,19 m² i wyjściem na ogród

Łazienka/WC 3,60 m²

Wiatrołap 5,25 m²

Komunikacja 2,45 m²

Piętro:
4 pokoje: 10,35 m² | 10,35 m² | 11,19 m² | 8,26 m²

Łazienka 5,83 m²

Garderoba 1,60 m²

Komunikacja 6,85 m²

Poddasze:
Wysokie, ok. 56,80 m² po podłodze (ok. 30,22 m² pow. użytkowej) — możliwość urządzenia dodatkowych pokoi i łazienki

Zewnętrze:
Ogród ok. 73 m²

Dodatkowe miejsce postojowe na podjeździe

Standard i technologie
Tradycyjna technologia murowana, bardzo dobre docieplenie

Tynki gipsowe maszynowe, posadzki cementowe, dach z blachodachówki

W cenie: kocioł gazowy 2‑funkcyjny oraz 100% ogrzewanie podłogowe

Rozprowadzona instalacja rekuperacyjna (gotowa pod rekuperator)

Przygotowanie pod pompę ciepła i kanały pod fotowoltaikę

Rozprowadzone instalacje: CO, elektryczna, wod‑kan, domofonowa, TV

Osobne liczniki mediów; drzwi wejściowe i brama garażowa w standardzie

Osiedle
Ogrodzony teren z wjazdem przez automatyczną bramę

Utwardzone ciągi wewnętrzne i wydzielone ogródki

Kameralna skala zabudowy

Lokalizacja i dojazd
Cicha, zielona okolica przy lesie

Przystanek ZTM ok. 300 m (I strefa), szybkie połączenia z metrem M2

Do centrum handlowego ok. 2 km

Do wjazdu na trasę S8 ok. 2 km

Typowe czasy dojazdu do Warszawy: ok. 24-31 min samochodem (w zależności od pory dnia i trasy); podobnie komunikacją (autobus + metro)

Edukacja i rekreacja w pobliżu
Blisko przedszkole, szkoła podstawowa, basen, hala sportowa, teatr

W Markach pełna infrastruktura rodzinna i sportowa; łatwy dostęp do sklepów (Biedronka/Lidl i centra handlowe w okolicy)

Cena: 899 000 PLN 

Zapraszam na prezentację:
Mateusz Najdychor


Przedstawiona oferta cenowa ma charakter informacyjny i nie stanowi oferty handlowej w rozumieniu Art.66 par.1 Kodeksu Cywilnego


Adres strony www: https:// NULL

Kontakt do opiekuna:

Najdychor Nieruchomości

Mateusz Najdychor
Nieprawidłowy adres E-mail
Mapa

Strona korzysta z plików cookie w celu realizacji usług zgodnie z Polityką prywatności. Możesz określić warunki przechowywania lub dostępu do cookie w Twojej przeglądarce.